Italiano English
A solution for your home
and your life needs.

Apartment for Sale in Bentivoglio

210,000 €
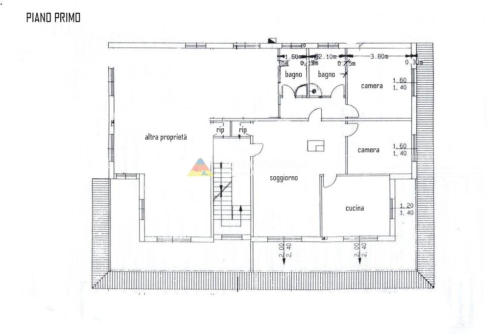
100 m2
2 Bedrooms
2 Bathrooms
Code
V002548
City
Bentivoglio
Category
Apartment
Locals
4
Garages
1
Sqm garage
20
sqm Terrace
14
Floor
1
Energetic class
Under evaluation
Property Conditions
Good
Rank
Medium
Position
Center
View
Open View
Garden
Common
Furniture
Furnished
Type living
Salon
Kitchen
Eat-In Kitchen
Heating
Independent
Accessories
Air Conditioning, Cupboard, Double Glazing, Optical Fiber, Laundry, Passing Car, Pedestrian Crossing, Armored door, Network Data, Closet, Mosquito Net

Map

VIA LA TORRE , Bentivoglio (BO)

Information request

Send

Share

Cookie preference