Italiano English
A solution for your home
and your life needs.

Apartment for Sale in San Lazzaro di Savena

188,000 €
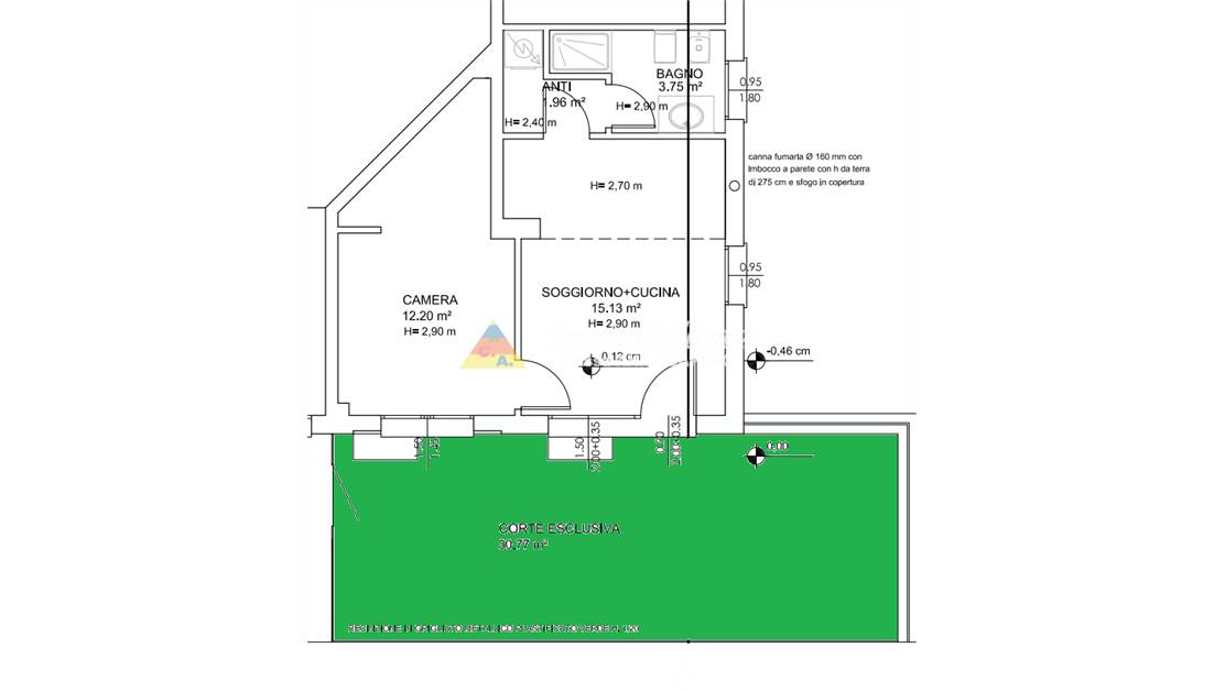
40 m2
1 Bedrooms
1 Bathrooms
Code
V002558
City
San Lazzaro di Savena
Category
Apartment
Locals
2
Car places
1
Sqm garden
30
Floor
Mezzanine
Energetic class
B
Property Conditions
Renovated
Rank
Medium
Position
Center
View
Open View
Free Sides
2
Garden
Private
Heating
Independent
Accessories
Air Conditioning, Double Glazing, Optical Fiber, Laundry, Passing Car, Pedestrian Crossing, Armored door, Network Data, Closet, Outdoor Tables

Information request

Send

Share

Cookie preference