A solution for your home
and your life needs.
Toggle navigation
Home
Properties
Sales
Rentals
Commercial properties
Prestige
About us
Services
Contacts
Compact real estate search panel
Expand real estate search panel
Type
Sales
Rentals
Commercial properties
Prestige
Category
Any
1br. apartment
2br. apartment
3br. or more apartment
Agricultural land
Apartment
Attic
Boat Place
Building land
Castle
Cellar
Chalet
Duplex
Estate
Family Villa
Farm
Garage
Hotel
Laboratory
Land
Loft
Maisonette
Mansard
Office
Palace
Parking Place
Portion of villa
Rustic
Semi-Detached House
Shed
Shop
Single house
Studio/flat
Terraced house
Villa
Warehouse
City
All
Avellino (AV)
Bentivoglio (BO)
Bologna (BO)
Budrio (BO)
Calderara di Reno (BO)
Casalecchio di Reno (BO)
Castello d'Argile (BO)
Castenaso (BO)
Riccione (RN)
San Lazzaro di Savena (BO)
Sestola (MO)
Vergato (BO)
Zone
All
Price (from - to)
Sqm (from - to)
Code
Order
Insert
Code
Category
City
Zone
Price
Square Meters
Search
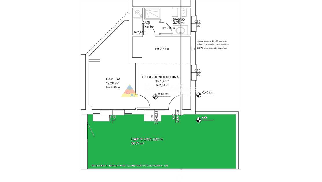
Apartment for Sale in Bologna
188,000 €
40 m
2
1 Bedrooms
1 Bathrooms
Previous
Next
Photos
Floorplans
Code
V002605
City
Bologna
Category
Apartment
Expanses
720 €
Locals
2
Car places
1
Sqm garden
30
Floor
Mezzanine
Energetic class
B
Property Conditions
Renovated
Rank
Medium
Position
Center
View
Open View
Free Sides
2
Garden
Private
Heating
Independent
Accessories
Air Conditioning, Double Glazing, Optical Fiber, Laundry, Passing Car, Pedestrian Crossing, Armored door, Network Data, Closet, Outdoor Tables
Map
AZ.ZE VIA FIORITA , Bologna (BO)
Information request
Name *
Phone *
E-mail *
Request Details *
I authorize the processing of my personal data according Regolamento UE n. 679/2016
Privacy Policy
Autorizzo al trattamento dei dati per finalità di marketing, attività promozionali, offerte commerciali ed indagini di mercato.
Send
Share
Tweet
Keep default settings X
Use of cookies
This site uses cookies. Our (own) cookies and those of our Partners (third party cookies) are used to offer you a unique experience with us. For this reason, together with our partners, we collect and process non-sensitive information (such as the identifier of your device or the pages you visit).
At any time you can delete, modify or verify the information you share in
Cookie preference
or in our
Cookie Policy
and
Privacy Policy
.
Necessary
Functional
Profiling
Analytics
Accept all
Decline all
Accept selected
Cookie preference