Italiano English
A solution for your home
and your life needs.

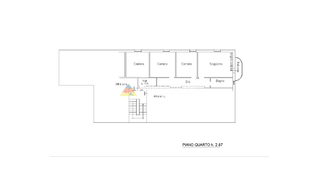
Attic for Sale in Bologna

339,000 €
85 m2
3 Bedrooms
1 Bathrooms
Code
V003020
City
Bologna
Category
Attic
Expanses
1,100 €
Locals
4
Floor
4
Energetic class
F
Property Conditions
Perfect Conditions
Rank
Elegant
Position
Center
View
Open View
Free Sides
2
Type living
Dining room
Kitchen
View Kitchen
Heating
Independent
Cooling
Split
Accessories
Air Conditioning, Elevator, Electric gate, Optical Fiber, Laundry, Passing Car, Pedestrian Crossing, Armored door, Network Data, Closet, Outdoor Tables, Triple glazing

Map

PIAZZA DI PORTA SAN VITALE AD.ZE , Bologna (BO)

Information request

Send

Share

Cookie preference