Classe energetica
In fase di valutazione
Accessori
Aria Condizionata, Armadio a Muro, Doppi Vetri, Fibra Ottica, Lavanderia, Passaggio Automobilistico, Passaggio Pedonale, Porta Blindata, Rete Dati, Ripostiglio, Zanzariere
APPARTAMENTO OTTIMAMENTE TENUTO A 5KM DAL CENTRO DI BENTIVOGLIO
Nel cuore di Castagnolo Minore, a Bentivoglio, proponiamo un appartamento situato in Via La Torre, in una zona tranquilla, ben servita e comoda alle principali vie di comunicazione. L’immobile è stato mantenuto con grande attenzione e si presenta in condizioni ottimali.
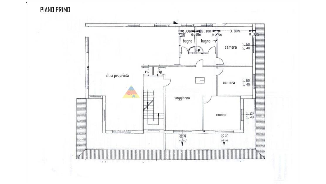
Appartamento di 100mq, ingresso su sala ampia e luminosa, cucina abitabile, due camere matrimoniali molto spaziose, due servizi, uno dei quali completo di vasca e doccia, oltre a un ripostiglio particolarmente utile per mantenere ordine e praticità.
All’esterno troviamo una grande terrazza, composta da due affacci (circa 10×1,5 m e 4×1,2 m), perfetta per momenti di relax all’aria aperta
L’immobile è inoltre dotato di zanzariere, porta blindata, infissi in alluminio con vetro camera nelle camere e in legno il sala e cucina, condizionatore nella camera matrimoniale.
Riscaldamento autonomo e AMPIO GARAGE DI 20MQ
€210.000