Italiano English
Una soluzione per la tua Casa
e le tue esigenze di Vita

Appartamento In Vendita a Bologna

375.000 €
128 m2
3 Camere
2 Bagni
Codice
V002703
Città
Bologna
Categoria
Appartamento
Locali
5
mq Terrazzo
8
Piano
4
Classe energetica
In fase di valutazione
Stato Immobile
Ottimo
Grado
Medio
Posizione
Centro
Panorama
Vista Aperta
Lati Liberi
2
Giardino
Comune
Arredi
Semi Arredato
Riscaldamento
Centralizzato
Accessori
Aria Condizionata, Armadio a Muro, Ascensore, Fibra Ottica, Passaggio Automobilistico, Passaggio Pedonale, Porta Blindata, Rete Dati, Ripostiglio, Tapparelle Elettriche, Tavolini Esterni, Video Sorveglianza
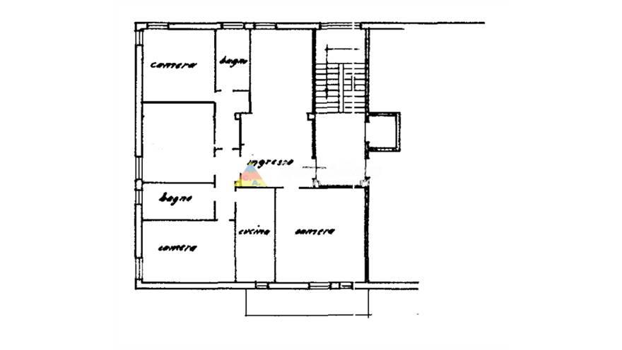
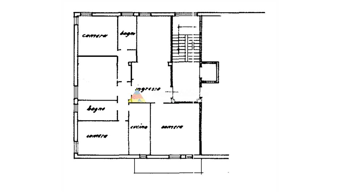
PENTAVANO OTTIMAMENTE TENUTO CON TERRAZZINO - Ad.ze Via Spartaco
In perfetto stabile, con affacci sul verde, posto al 4° piano con ascensore, luminoso e silenzioso
128MQ, Ingressosu sala sala, cucina abitabile, 3 camere, 2 servizi (di cui 1 finestrato), ripostiglio, terrazzina di 8MQ
Termo Centralizzato, aria condizionata, cantina
€375.000 + €23.000 DI GARAGE

Mappa

Ad.ze Via Spartaco , Bologna (BO)

Richiedi informazioni

Invia

Condividi

Cookie preference