Italiano English
Una soluzione per la tua Casa
e le tue esigenze di Vita

Appartamento In Vendita a Bologna

355.000 €
85 m2
3 Camere
1 Bagni
Codice
V002992
Città
Bologna
Categoria
Appartamento
Spese condominiali
1.100 €
Locali
4
Piano
4
Classe energetica
F
Stato Immobile
Ottimo
Grado
Signorile
Posizione
Centro
Panorama
Vista Aperta
Lati Liberi
2
Tipo Soggiorno
Sala da Pranzo
Tipo Cucina
A Vista
Riscaldamento
Autonomo
Raffrescamento
Split
Accessori
Aria Condizionata, Ascensore, Cancello Elettrico, Fibra Ottica, Lavanderia, Passaggio Automobilistico, Passaggio Pedonale, Porta Blindata, Rete Dati, Ripostiglio, Tavolini Esterni, Tripli Vetri
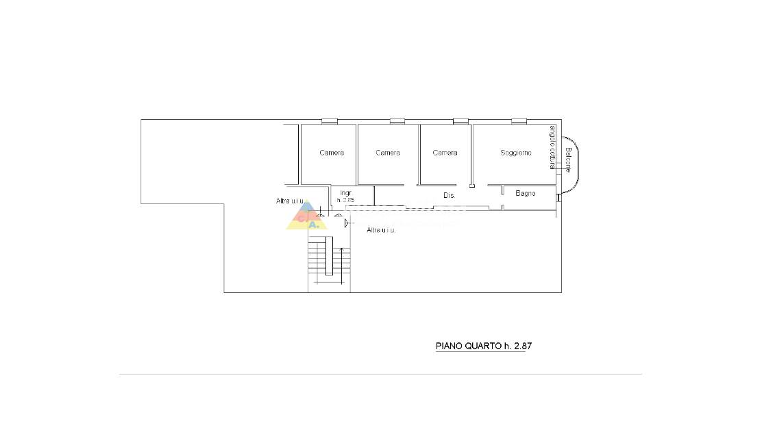
APPARTAMENTO DI 85MQ CON VISTA PANORAMICA AL 4° E ULTIMO PIANO - Sant'Orsola ad.ze
Quadrilocale come nuovo, in perfetta palazzina, silenzioso e luminoso, posto al 4° ed ultimo piano con ascensore, BALCONE CON VISTA PANORAMICA e distribuzione funzionale degli spazi interni.
85MQ, ingresso, spaziosa zona living con cucina a vista e accesso al terrazzino con vista tetti, in cui è presente tavolinetto francese per due/tre persone, 3 camere (di cui due matrimoniali) e ampio servizio finestrato.
Riscaldamento autonomo, aria condizionata in tutti gli ambienti, cantina.
€ 355.000

Mappa

SANT'ORSOLA AD.ZE , Bologna (BO)

Richiedi informazioni

Invia

Condividi

Cookie preference