Città
San Lazzaro di Savena
Stato Immobile
Ristrutturato
Accessori
Aria Condizionata, Doppi Vetri, Fibra Ottica, Lavanderia, Passaggio Automobilistico, Passaggio Pedonale, Porta Blindata, Rete Dati, Ripostiglio, Tavolini Esterni
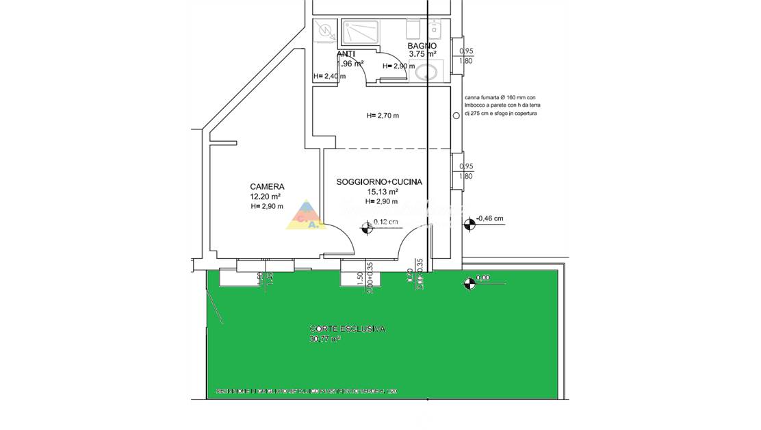
BILOCALE COMPLETAMENTE RISTRUTTURATO IN ZONA SERVITISSIMA e AREA CORTILIVA ESCLUSIVA di 30MQ. - San Lazzaro di Savena, 1,5 KM da Parco dei Cedri.
Delizioso bilocale NUOVO DA IMPRESA in zona servitissima, luminoso e silenzioso, posto al piano terra di piccola palazzina con BASSE SPESE CONDOMINIALI.
40MQ, ingresso indipendente su zona giorno con angolo cottura, area cortiliva di 30mq esclusivo, servizio finestrato con box doccia, camera matrimoniale con cabina armadio.
OTTIME FINITURE e PARQUET BETULLA
Termo autonomo, Cantina, posto auto esterno
€188.000