Italiano English
Una soluzione per la tua Casa
e le tue esigenze di Vita

Appartamento In Vendita a Bentivoglio

210.000 €
100 m2
2 Camere
2 Bagni
Codice
V003000
Città
Bentivoglio
Categoria
Appartamento
Locali
4
Box
1
Mq Box
20
mq Terrazzo
14
Piano
1
Classe energetica
In fase di valutazione
Stato Immobile
Buono
Grado
Medio
Posizione
Centro
Panorama
Vista Aperta
Giardino
Comune
Arredi
Arredato
Tipo Soggiorno
Salone
Tipo Cucina
Abitabile
Riscaldamento
Autonomo
Accessori
Aria Condizionata, Armadio a Muro, Doppi Vetri, Fibra Ottica, Lavanderia, Passaggio Automobilistico, Passaggio Pedonale, Porta Blindata, Rete Dati, Ripostiglio, Zanzariere
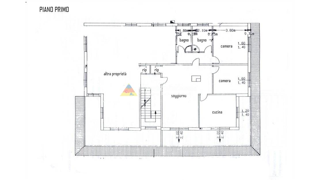
APPARTAMENTO DI 100 MQ CON TERRAZZA, OTTIMAMENTE TENUTO A 5KM DAL CENTRO DI BENTIVOGLIO
Nel cuore di Castagnolo Minore, a Bentivoglio, proponiamo un appartamento situato in Via La Torre, in una zona tranquilla, ben servita e comoda alle principali vie di comunicazione. L’immobile è stato mantenuto con grande attenzione e si presenta in condizioni ottimali.
Appartamento di 100mq, ingresso su sala ampia e luminosa, cucina abitabile, due camere matrimoniali molto spaziose, due servizi, uno dei quali completo di vasca e doccia, oltre a un ripostiglio particolarmente utile per mantenere ordine e praticità.
All’esterno troviamo una GRANDE TERRAZZA, COMPOSTA DA DUE AFFACCI (circa 10×1,5 m e 4×1,2 m), perfetta per momenti di relax all’aria aperta
L’immobile è inoltre dotato di zanzariere, porta blindata, infissi in alluminio con vetro camera nelle camere e in legno il sala e cucina, condizionatore nella camera matrimoniale.
Riscaldamento autonomo e AMPIO GARAGE DI 20MQ
€ 210.000

Mappa

VIA LA TORRE , Bentivoglio (BO)

Richiedi informazioni

Invia

Condividi

Cookie preference