Italiano English
Una soluzione per la tua Casa
e le tue esigenze di Vita

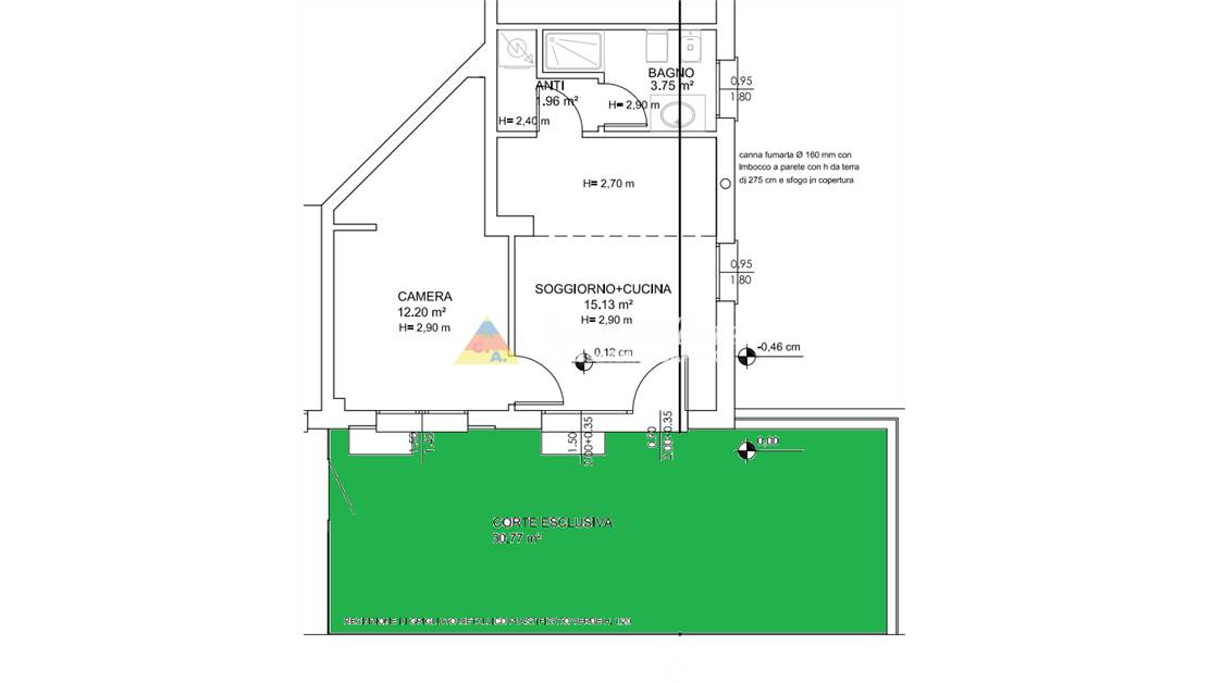
Appartamento In Vendita a Bologna

188.000 €
40 m2
1 Camere
1 Bagni
Codice
V002559
Città
Bologna
Categoria
Appartamento
Locali
2
Posti auto
1
Mq Giardino
30
Piano
Rialzato
Classe energetica
B
Stato Immobile
Ristrutturato
Grado
Medio
Posizione
Centro
Panorama
Vista Aperta
Lati Liberi
2
Giardino
Privato
Riscaldamento
Autonomo
Accessori
Aria Condizionata, Doppi Vetri, Fibra Ottica, Lavanderia, Passaggio Automobilistico, Passaggio Pedonale, Porta Blindata, Rete Dati, Ripostiglio, Tavolini Esterni
BILOCALE COMPLETAMENTE RISTRUTTURATO IN ZONA SERVITISSIMA e AREA CORTILIVA ESCLUSIVA di 30MQ. - Ad.ze Via Cavazza
Delizioso bilocale NUOVO DA IMPRESA in zona servitissima, luminoso e silenzioso, posto al piano terra di piccola palazzina con BASSE SPESE CONDOMINIALI.
40MQ, ingresso indipendente su zona giorno con angolo cottura, area cortiliva di 30mq esclusivo, servizio finestrato con box doccia, camera matrimoniale con cabina armadio.
OTTIME FINITURE e PARQUET BETULLA
Termo autonomo, Cantina, posto auto esterno
€188.000

Richiedi informazioni

Invia

Condividi

Cookie preference