Classe energetica
In fase di valutazione
Riscaldamento
Centralizzato
Accessori
Aria Condizionata, Armadio a Muro, Ascensore, Fibra Ottica, Passaggio Automobilistico, Passaggio Pedonale, Porta Blindata, Rete Dati, Ripostiglio, Tapparelle Elettriche, Tavolini Esterni, Video Sorveglianza
PENTAVANO OTTIMAMENTE TENUTO CON TERRAZZINO - Viale Felsina ad.ze
In perfetto stabile, con affacci sul verde, posto al 4° piano con ascensore, luminoso e silenzioso
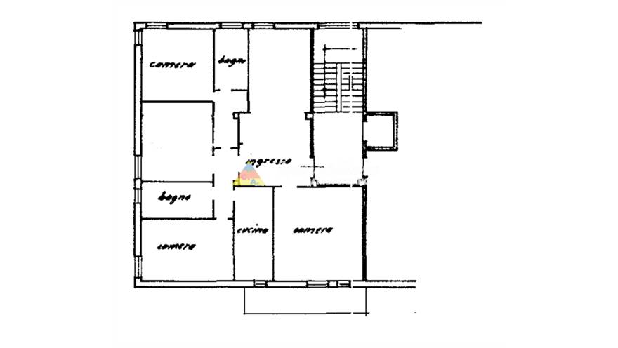
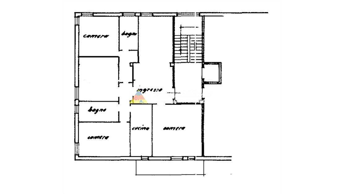
128MQ, Ingresso su sala sala, cucina abitabile, 3 camere, 2 servizi (di cui 1 finestrato), ripostiglio, terrazzina di 8MQ
Termo Centralizzato, aria condizionata, cantina
€375.000 + €23.000 DI GARAGE