Italiano English
Una soluzione per la tua Casa
e le tue esigenze di Vita

4° ED ULTIMO PIANO, COME NUOVO, CON BALCONE

355.000 €
85 m2
3 Camere
1 Bagni
Codice
V002922
Città
Bologna
Categoria
Attico
Spese condominiali
1.100 €
Locali
4
Piano
4
Classe energetica
In fase di valutazione
Stato Immobile
Ottimo
Grado
Signorile
Posizione
Centro
Panorama
Vista Aperta
Lati Liberi
2
Tipo Soggiorno
Sala da Pranzo
Tipo Cucina
A Vista
Riscaldamento
Autonomo
Raffrescamento
Split
Accessori
Aria Condizionata, Ascensore, Cancello Elettrico, Fibra Ottica, Lavanderia, Passaggio Automobilistico, Passaggio Pedonale, Porta Blindata, Rete Dati, Ripostiglio, Tavolini Esterni, Tripli Vetri
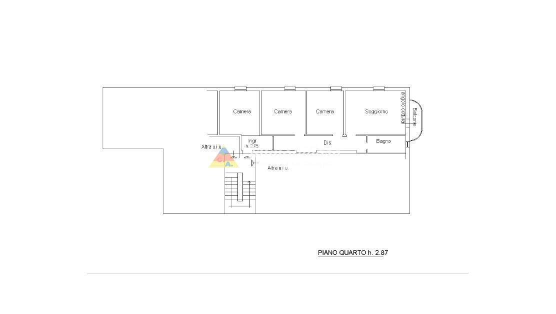
PAOLO FABBRI AD.ZE - 4° E ULTIMO PIANO CON ASCENSORE, COME NUOVO, LUMINOSO DI 85 MQ CON BALCONE
In perfetta palazzina, silenzioso e luminoso, posto al 4° ed ultimo piano con ascensore, ottimamente tenuto con distribuzione funzionale degli spazi interni.
85MQ, ingresso, spaziosa zona living con cucina a vista e accesso al terrazzino con vista tetti, in cui è presente tavolinetto francese per due/tre persone, tre camere, di cui due matrimoniali, ampio servizio finestrato.
Riscaldamento autonomo, aria condizionata in tutti gli ambienti, cantina.
Spese condominiali € 1100 annui.
€ 355.000

Mappa

ad.ze Via Paolo Fabbri , Bologna (BO)

Richiedi informazioni

Invia

Condividi

Cookie preference