Una soluzione per la tua Casa
e le tue esigenze di Vita
Toggle navigation
Home
Immobili
Vendite
Affitti
Immobili commerciali
Prestigio
Chi siamo
Servizi
Contatti
Compatta pannello di ricerca immobili
Espandi pannello di ricerca immobili
Tipologia
Vendite
Affitti
Immobili commerciali
Prestigio
Categoria
Qualsiasi
1 locale
2 locali
3 locali
4 o più locali
Appartamento
Attico
Azienda agricola
Baita
Cantina
Capannone
Casa singola
Castello
Duplex
Garage
Hotel
Laboratorio
Loft
Magazzino
Maisonette
Mansarda
Negozio
Porzione di casa
Porzione di villa
Posto auto
Posto barca
Rustico / Casale
Stabile / Palazzo
Tenuta
Terreno
Terreno agricolo
Terreno edificabile
Ufficio
Villa
Villa bifamiliare
Villetta a schiera
Città
Tutte
Avellino (AV)
Bentivoglio (BO)
Bologna (BO)
Budrio (BO)
Casalecchio di Reno (BO)
Malalbergo (BO)
Riccione (RN)
San Lazzaro di Savena (BO)
Sestola (MO)
Vergato (BO)
Zona
Tutte
Prezzo (da - a)
Mq (da - a)
Codice
Ordinamento
Inserimento
Codice
Categoria
Città
Zona
Prezzo
Metri quadri
Cerca
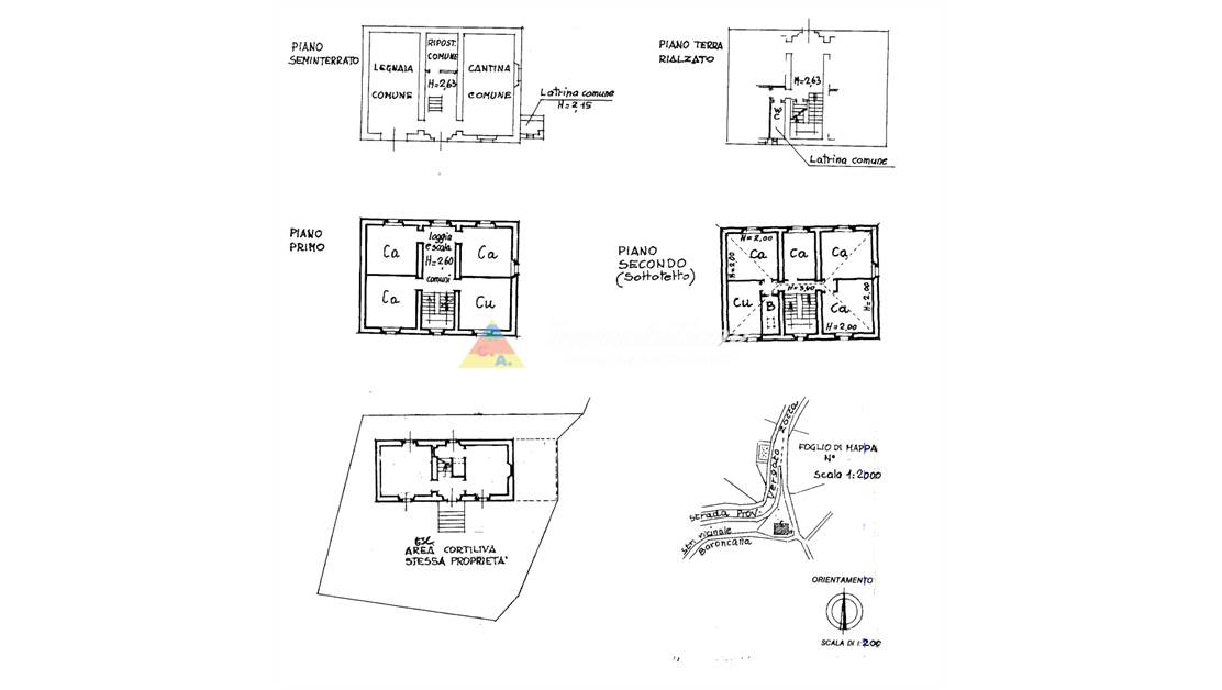
Villa In Vendita a Vergato
85.000 €
400 m
2
7 Camere
3 Bagni
Previous
Next
Foto
Planimetrie
Codice
V002920
Città
Vergato
Categoria
Villa
Locali
10
Mq Giardino
200
Piano
Terra
Classe energetica
In fase di valutazione
Stato Immobile
Da Ristrutturare
Grado
Medio
Posizione
Collina
Panorama
Vista Monti
Lati Liberi
4
Giardino
Privato
Riscaldamento
Autonomo
Accessori
Armadio a Muro, Camino, Doppi Vetri, Fibra Ottica, Lavanderia, Parco Condominiale, Passaggio Automobilistico, Passaggio Pedonale, Rete Dati, Ripostiglio, Tavolini Esterni, Zanzariere
A 5 Min da Castel D'Aiano e 20 Min da Vergato - VILLA DA RISTRUTTURARE
Palazzo libero subito, immersa nel verde
VILLA DI 400 MQ su più livelli con circa 200 MQ DI AREA CORTILIVA, ottima per 2/3 nuclei familiari.
Possibilità di utilizzo come B&B e strutture ricettive
TETTO OTTIMAMENTE TENUTO
85.000€
Mappa
Ad.ze Vergato , Vergato (BO)
Richiedi informazioni
Nominativo *
Telefono *
Email *
Dettagli richiesta *
Autorizzo il trattamento dei miei dati personali in base Regolamento UE n. 679/2016
Privacy Policy
Autorizzo al trattamento dei dati per finalità di marketing, attività promozionali, offerte commerciali ed indagini di mercato.
Invia
Condividi
Tweet
Mantieni impostazioni di default X
Uso dei cookies
Questo sito fa uso di cookies. I nostri cookies (propri) e quelli dei nostri Partners (cookies di terzi) servono per poterti offrire un'esperienza unica con noi. Per questo motivo, insieme ai nostri partners, raccogliamo e processiamo informazioni non sensibili (come l'identificatore del tuo dispositivo o le pagine che visiti).
In qualsiasi momento potrai eliminare, modificare o verificare le informazioni che condividi in
Cookie preference
o nella nostra
Cookie Policy
e
Privacy Policy
.
Necessari
Funzionali
Profilazione
Analitici
Accetta tutti
Rifiuta tutti
Accetta selezionati
Cookie preference